Home » Search




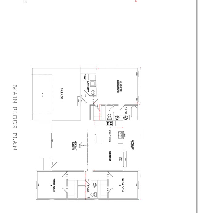
To Be Built in Frenchtown! This 1,639 sq. ft. single-level home on Alexander Lane blends modern comfort with Montana charm. Featuring 3 bedrooms and 2 bathrooms, the open-concept layout showcases vaulted ceilings, granite countertops, and upgraded appliances throughout. The spacious primary suite includes a walk-in closet and a beautifully tiled shower for a touch of luxury. Enjoy quality craftsmanship and thoughtful design in a prime location—just down the street from Frenchtown High School and Frenchtown Pond. A rare opportunity to own a brand-new home in one of Western Montana’s most sought-after communities.
| 7 months ago | Listing first seen on site | |
| 7 months ago | Listing updated with changes from the MLS® |
Did you know? You can invite friends and family to your search. They can join your search, rate and discuss listings with you.