Home » Search




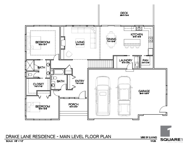
This beautiful home to be built by Edgell Building Inc. is a 5-bedroom 3 bath home with a finished walk-out basement, perfectly situated across from the 2-acre park in the desirable Invermere Subdivision. Resting on a spacious third of an acre lot with mature trees, this property offers just under 1,700 square feet on the main level and an additional 1,300+ square feet finished in the walkout lower level. The main level is open concept with a vaulted ceiling in the living room, gas fireplace, and large windows. The living room area flows into the adjoining dining and kitchen areas featuring solid surface countertops, a large island and a pantry. The composite deck with sleek metal railing, welcomes you outside to enjoy the sunsets. The primary suite includes a tray ceiling and a spacious ensuite. A functional laundry/mudroom connects directly to the oversized 3- car garage, offering over 800 square feet of space. Downstairs, the finished walk-out basement provides three bedrooms, another bathroom, a second living area, and ample storage. It opens onto a covered patio. A $20,000 landscaping credit is included in the price. The Invermere subdivision allows for shops and RV parking pads to accommodate Montana lifestyles. Buyer may choose finishes - certain selections may impact final price. Renderings are for illustrative purposes only, and as a conversation starter. Final price will be dependent upon finishes chosen, and building costs at time of construction. Builder will provide a one year home warranty.
| 2 months ago | Listing first seen on site | |
| 2 months ago | Listing updated with changes from the MLS® |
Did you know? You can invite friends and family to your search. They can join your search, rate and discuss listings with you.