Home » Search




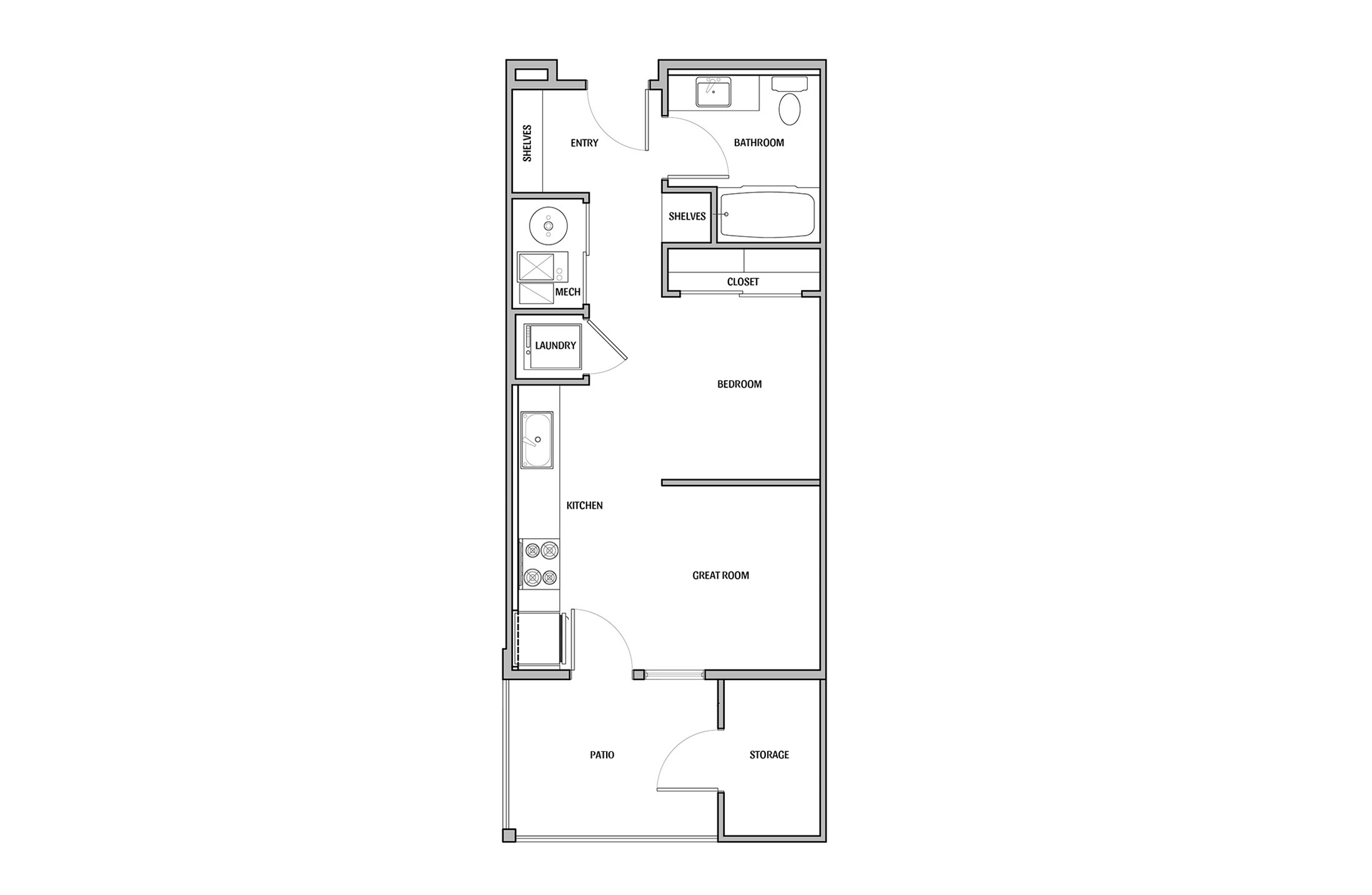
Welcome to Ravara Homes, a thoughtfully designed, vibrant community offering a mix of market-rate and permanently attainable homes. Income-qualified condos at Ravara are available to buyers who earn 120% or less of area median income. Unit 105 is a studio home with one bathroom. These brand new homes feature quality construction, ample natural light, high ceilings, and clean, modern, spacious layouts. Each unit comes equipped with a suite of energy efficient appliances, including in-unit washers and dryers. Situated in the highly desirable Northside, Ravara is minutes from downtown and has nearby access to multiple trailheads. Buyers who would like to purchase this permanently attainable home will need to complete a screening form and application through Front Step Community Land Trust, as well as complete a homebuyer education course. Please note that homes are still under construction and buyers must be accompanied on-site. Interior photos shown are of other completed homes and intended to be indicative of similar build quality and finish selection.
| 4 weeks ago | Status changed to Active | |
| 4 weeks ago | Listing updated with changes from the MLS® | |
| 4 weeks ago | Listing first seen on site |
Did you know? You can invite friends and family to your search. They can join your search, rate and discuss listings with you.